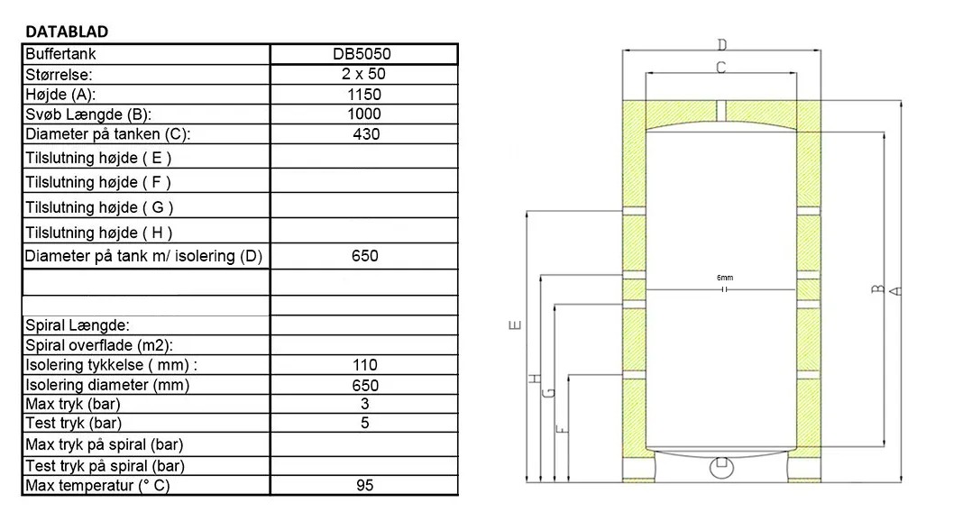
Langå Dobbelt akkumuleringstank - 50+50 liter - Til varmepumper

Langå Dobbelt akkumuleringstank - 50+50 liter - Til varmepumper
Antal
Fragt: 150,-
4.675,-
VVS-nummer:db5050
Leveringstid:1-2 hverdage
Fri fragt fra 4.995,-

Langå Dobbelt akkumuleringstank - 50+50 liter - Til varmepumper

Dobbelt Buffertank/Akkumuleringstank med isolering.

Størrelse 50+50 liter
Isolering Med isolering
Vægt 70,0 kg

 

 
VIND gavekort på 1000 kr!
Tilmeld dig vores nyhedsbrev. Vinder for april: Lisbeth Bergholt
Navn: 
E-mail: